Dimension Toilette Geberit
Geberit One Geberit Sales Ltd
Reservoir De Wc Attenant Geberit Ap 128 Simple Debit Geberit Nouveau Modele Sanilandes
Toilet Bidet Seats Accessible Toilet Geberit Disability Toilet Angle Furniture Png Pngegg
Geberit Kombifix Tank For The Wc For Built In Installation Siko
Geberit Aquaclean Mera Care 146 242 11 1 Smart Toilet Wc Care Product Design Technology
Images Eu Ssl Images Amazon Com Images I E1biwlib 2bps Pdf
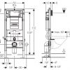
One of the improvements made by Geberit to its 2×4 carrier frame is the frame width Previously, the carrier has a width of 231/4″, which is a typical width size for most 2×4 inwall carrier frame you can find in the marketplace With a new frame ( ), the width has shrunk to just 193/4″.
Dimension toilette geberit. DecorPlanetcom, 18 W 21st St, New York, NY , USA (800). The roughin of a toilet is the dimension between the center of the flange and the wall behind the water closet The most common roughin is 12″ The most common roughin is 12″ However, you still need to measure it before replacing or installing a toilet just in case. Geberit AquaClean 8000plus Care.
Geberit inwall tank and carrier, for toilets, 16/08 gpf Dimension 19 3/4" x 3 1/8" Inch Variants without actuator plate Colors Retailer contact Facebook. Geberit AquaClean combines convenience, design and sustainability with Geberit quality to create aesthetic and innovative solutions for the bathroom From the elegant, exceptional complete solution with numerous comfort functions to the flexible enhancement solution, the right shower toilet can be found for virtually every requirement. Register to receive your free copy of Geberit Press Kit First Name Name.
Suitable for Geberit remote flush actuation. The sophisticated Geberit System makes installation quick and easy and maintenance practically nonexistent Geberit systems improve the look of any bathroom by hiding the unsightly toilet tank Replacing a standard tank and toilet with the Geberit system results in more usable space, improved hygiene and better accessibility. This item Geberit 5 X Geniune Diaphragm Washer Outlet Flushing Valve Repair Rubber 816 418 00 1 Geberit Part Geberit Replacement Dual Flush Cistern Valve Main Body Only Twico1.
Geberit Piping Systems for Building Drainage Geberit knowhow covers the entire path that the water travels as it moves through a building From the connection to the water supply through the distribution to all of the floors and consumers, all the way to the drainage of buildings and roofs into the public sewage system, systems are available which are perfectly tailored to one another. Geberit Type 01 Pneumatic Flush Buttons (Dual Flush) Two sizes of simple and round shape with a diameter of only 80 mm and 94 mm These Type 01 flush buttons are good for inwall installation or placed anywhere within a 55 feet radius of the tank, respectively. Geberit WC element DUOFIX BASIC Width 500 mm Mounting height 10 mm 2level (3 and 6 litres) or start stop flushing Selfsupporting frame powdercoated Frame with drill holes Ø 9 mm for fixing in wooden frame construction Frame with locating holes for Geberit DuofixBasic wall anchor.
Download centre of the Geberit website In order to offer you optimal service, this website uses cookies By using our website, you express your consent to this feature. Geberit Duofix frames for WC provide suitable solutions for nearly any construction situation They are available in many designs and heights This video sho. Geberit Part Number Item Weight 143 pounds Package Dimensions 748 x 571 x 512 inches Item model number Item Package Quantity 1.
Installing the new Geberit inwall toilet system for 2x4 construction. The globally operating Geberit Group is a European leader in the field of sanitary products Geberit operates as an integrated group with a very strong local presence in most European countries, providing unique added value when it comes to sanitary technology and bathroom ceramics. Slim dimensions The Geberit Monolith sanitary module for toilets has been extremely popular All sanitary technology, such as the cistern, dual flush and trap are located in a slim, elegant module This spacesaving solution is ideal for new buildings and renovations alike and generally does not require any structural modifications whatsoever.
Geberit Piping Systems for Building Drainage Geberit knowhow covers the entire path that the water travels as it moves through a building From the connection to the water supply through the distribution to all of the floors and consumers, all the way to the drainage of buildings and roofs into the public sewage system, systems are available which are perfectly tailored to one another. The installation systems from Geberit offer great design freedom and flexibility They are used in renovation projects and new buildings The wide range of products includes everything that is needed to install highly functional sanitary walls, and guarantees safe planning, calculating and implementing for both prewall and inwall installations. No Warranty Description 25 years.
Additional top actuation available with construction heights cm and 98 cm;. Geberit Kombifix element for wallhung WC, 98 cm, with Omega concealed cistern 12 cm 9 9 9 9 Geberit Kombifix element for wallhung WC, 109 cm, with Alpha concealed cistern 8 cm, with leg supports 9 9 Geberit Kombifix element for wallhung WC, 109 cm, with Alpha concealed cistern 8 cm 9 9 9 9 Compatible. Geberit AquaClean 8000plus Care.
Geberit Sigma Wall Hung Toilet with Concealed Dual Flush Toilet Carrier System in White $ Geberit Sigma 128 gpf Toilet Tank in White $ Geberit Sigma 493/4 in Powder Coated Steel Concealed Toilet System with HDPE Tank for 128 gpf Wall Hung Toilet $. Clearances around toilets and water closets (WCs) can be measured from the face of the fixture or from its center line and are used to best service the toilet user Minimum clearances between the face of the toilet fixture and the wall or nearest obstruction element are at least 24” (61 cm)* but are recommended to be 36” (91 cm) Accessories such as toilet paper dispensers should be within. Dimensions can be taken from bowl or carrier specification sheet Be sure to allow for finished floor and sole plate height Discharge elbow installation 1 2 3 4 3½"–4¾" (90–1) 3¹⁄₈"–5³⁄₁₆" (105–135) 31/2"43/4" (901) 41/8"53/16" () 4 "5 () AB C D E F.
With its floating design, the Geberit AquaClean Mera is the highestselling shower toilet in Europe and sets new standards in every respect The Mera is suitable for everyone who wants to pamper themselves with an additional helping of wellness. The Geberit installation elements for WCs include a conduit pipe for the water supply connection of Geberit AquaClean shower toilets You can therefore retrofit a Geberit AquaClean, the shower toilet that cleans with water, at any time. Geberit DuoFresh odour extraction with orientation light The new Geberit odour extraction unit for toilets can be installed in all concealed cisterns from the Sigma range In addition to an air filter, it also has an orientation light Under certain conditions, existing toilet systems can also be retrofitted with the odour extraction unit.
Geberit8/16 GPF Dual Flush 2Piece Elongated Icera Toilet w/Concealed Tank for 2x6 Construction and DualFlush Plate in Balsa Model# CKIT2x6 $ 4 11. Installation dimensions Symbol DANGER Safety Target group The Geberit product is only to be installed by a qualified installer in accordance with the installation instructions and the current safety regulations Proper use The Geberit AquaClean 8000plus Care is designed for cleaning the anal and vaginal area It may only be used as a complete. For installation in wood or steel stud walls that provide support equal to 675Inch depth For 2hole wallhung washdown WC with fastening distance 71Inch (18 cm) or 91Inch (23 cm) Toilet heights 15Inch 19Inch Supports up to 800 pounds › See more product details.
Geberit Smyle Square Soft Close Toilet Seat Sandwich Shape Slim White Geberit R 1, (incl VAT) Add To Selection View Details. Geberit8/16 GPF Dual Flush 2Piece Elongated Icera Toilet w/Concealed Tank for 2x4 Construction and DualFlush Plate in White. The toilet may be a simple household fixture – but it’s one that many of us couldn’t imagine living without Even simple toilet fixtures can have complicated features Kick your research off right by checking out this series of basic toilet dimensions, drawings, and definitions You might even think that if you’ve seen one toilet, you’ve seen them all, or that the only thing worth.
Toilet paper holder location – the suggested position is 812 inches ( 30cm) from the front of the toilet seat to the center line of the toilet paper holder, and a height of 26 30 inches (66 76cm) Bathtub dimensions and clearances Standard bathtub dimensions The smallest standard bath is 5ft x 2 ½ feet (153cm x 76cm). Geberit Omega concealed cistern Complete flexibility with the various construction heights of 112 cm, 98 cm and cm;. The Geberit AquaClean Sela impresses with its elegance and beauty and embodies the highest quality standards The equipment of the Geberit AquaClean Sela offers the classic functions of a Geberit shower toilet The shower toilet in an elegant, minimalist design boasts highquality materials and is suitable for the tasteful aesthete.
The Geberit HDPE drainage system is suitable for a multitude of applications in industry or laboratories The polyethylene used is resistant against most standard alkalis, acids and chemicals, as well as hot water up to 80 °C A proven solution For virtually every drainage task. The sophisticated Geberit System makes installation quick and easy and maintenance practically nonexistent Geberit systems improve the look of any bathroom by hiding the unsightly toilet tank Replacing a standard tank and toilet with the Geberit system results in more usable space, improved hygiene and better accessibility. In our inaugural product focus blog we are looking at the Geberit Aquaclean Mera Toilet Shower A New Dimension In Cleanliness The Geberit AquaClean Mera complete solution takes the comfort and convenience of a shower toilet to a whole new level Its sophisticated technology and stylish design complement each other perfectly, so cleaning.
The sophisticated Geberit System makes installation quick and easy and maintenance practically nonexistent Geberit systems improve the look of any bathroom by hiding the unsightly toilet tank Replacing a standard tank and toilet with the Geberit system results in more usable space, improved hygiene and better accessibility. GEBERIT QUALITY FOR THE ENTIRE BATHROOMDesign and technology from a single source MODERN FLUSH PLATES Stylish flush plates and quality behindthewall technology RIMFREE® TOILETS Prevents the build up of limescale and bacteria TOILETS Elegant and easy to clean SHOWER TOILETS Discover the new feeling of wellbeing. The new Geberit AquaClean Sela impresses with elegance and beauty and embodies the highest quality standards The shower toilet in an elegant, minimalist design boasts highquality materials and is suitable for the tasteful aesthete The equipment of the Geberit AquaClean Sela offers the classic functions of a Geberit shower toilet.
The Geberit AquaClean Sela impresses with its elegance and beauty and embodies the highest quality standards The equipment of the Geberit AquaClean Sela offers the classic functions of a Geberit shower toilet The shower toilet in an elegant, minimalist design boasts highquality materials and is suitable for the tasteful aesthete. Geberit inwall tank and carrier, for toilets Dimension 19 3/4" x 5 1/2" Inch Variants 16/08 gpf, without actuator plate Colors Retailer contact Facebook Twitter. The globally operating Geberit Group is a European leader in the field of sanitary products Geberit operates as an integrated group with a very strong local presence in most European countries, providing unique added value when it comes to sanitary technology and bathroom ceramics.
Geberit inwall systems for toilets are the classics of modern bathroom design, installed over a million times around the world for more than 50 years Geberit inwall toilet systems Geberit flush plates and cover plates Blend in or make a bold statement – the choice is yours Whatever style or finish you need, Geberit offers the widest. Short Height Carrier Frame for Wall Hung Bidets in PowderCoated () at Ferguson Nobody expects more from us than we do ®. Wallmounted toilet has a 5 liter cistern capacity with dual flushMade in ceramic and available in white Requires Geberit concealed tank and carrier (ref ) and Geberit white or chrome sampa flush plate (ref 115 , ref ) CeraStyle 500 1.
Geberit Part Number Item Weight 1 pounds Product Dimensions 18 x 145 x 9 inches Item model number Material Plastic Item Package Quantity 1 Batteries Required?. Particularly small actuator plates;. The company Geberit The globally operating Geberit Group offers a unique range of products and solutions both in the sanitary technology sector and in the area of ceramic appliances Products manufactured in Europe account for more than 90 per cent of sales.
GEBERIT QUALITY FOR THE ENTIRE BATHROOMDesign and technology from a single source MODERN FLUSH PLATES Stylish flush plates and quality behindthewall technology RIMFREE® TOILETS Prevents the build up of limescale and bacteria TOILETS Elegant and easy to clean SHOWER TOILETS Discover the new feeling of wellbeing. One of the improvements made by Geberit to its 2×4 carrier frame is the frame width Previously, the carrier has a width of 231/4″, which is a typical width size for most 2×4 inwall carrier frame you can find in the marketplace With a new frame ( ), the width has shrunk to just 193/4″. SPECS Length 22", Height 153", Width 14", Inches 7inch roughin Bullets change to Onepiece Wallhung Toilet Dual Flush Soft Closing Seat Included ADA Height Compliant Adjustable Height Sleek and Modern Easy to Clean Design Concealed Carrier Tank and Actuator Plate not Included Compatible with All Major Brands.
The web site for Geberit North America, the world's leading provider of inwall systems for wallhung bathroom fixtures, including toilets, bidet toilets, lavatory sinks, and urinals. The Geberit AquaClean Mera Care shower toilet is designed to put you in control Its innovative features include a hybrid hot water system with continuous flow heater and water storage heater guarantees warm water even if the wash is run one after another. With its floating design, the Geberit AquaClean Mera Comfort is the highestselling shower toilet in Europe In addition to the proven WhirlSpray shower technology and the rimless WC ceramic appliance with TurboFlush technology, the Mera boasts a number of extra comfort functions such as WC seat ring heating.
Geberit DuoFresh odour extraction with orientation light The new Geberit odour extraction unit for toilets can be installed in all concealed cisterns from the Sigma range In addition to an air filter, it also has an orientation light Under certain conditions, existing toilet systems can also be retrofitted with the odour extraction unit. Geberit Duofix frames for WC provide suitable solutions for nearly any construction situation They are available in many designs and heights This video sho. Geberit SuperTubeplanning tool Straightforward planning thanks to the dimensioning tool The web tool guides you through the process of planning a onedimensional discharge pipe step by step The values and information obtained can then be collated and downloaded as a PDF file Geberit SuperTube planning tool.
Geberit reliability is legendary Also known as a concealed cistern, each inwall flush toilet tank is leaktested before shipment Standard flush volume is 16 gallons (6 liters) or 128 gallons (48 liters) for solids and 08 gallons (3 liters) for liquids, saving thousands of gallons of water per year compared to a standard toilet. Position the toilet 15” to 19” off the floor to meet personal preference or local ADA guidelines including ANSI A1171 instruction manuals are available at wwwgeberitus GEBERIT NOW TECHNICAL INSTALL INSTRUCTIONS http//wwwgeberitnowcom/ resource/html/installtechnicalinstallationhtml GEBERIT KNOWHOW INSTALLED YOUTUBE. GEBERIT INSTALLATION SYSTEM For 16/08 GPF (6/3 LPF) and 128/08 GPF (48/3 LPF) WallHung Toilets, 2x4 Installations PRODUCT SPECIFICATIONS InWall Duofix carrier system and Sigma concealed tank with actuator flush panel or pneumatic push button for washdown wallhung toilets System shall fit within minimum 31/2” (90 mm) framing wall or.
Geberit Bati Support Duofix Plus Accessibilite Pmr En Applique Ref Cedeo
Images Eu Ssl Images Amazon Com Images I E1biwlib 2bps Pdf
Geberit Panneau Monolith Pour Wc Suspendu Noir Distriartisan
Wc Suspendu Bati Support Geberit Cuvette Alterna Daily O Sans Bride
Geberit Slimline 114cm Wall Hung Wc Frame Victorian Plumbing Plumbing Cistern Interior Design Basics
Geberit Duofix Wc Frame 112cm With Sigma Up3 Cistern 12cm 111 384 00 5
Wandtiefspul Wc Geberit Acanto Weiss Spulrandlos Mit Kera Tect Bxtxh 350x510x335mm
Geberit Smyle Geberit
Wc Suspendu Vitalis Blanc Rallonge Sans Trous D Abattant Wc Geberit
Geberit Duofix Element Pour Cuvette De Wc Suspendue 98 Cm Avec Reservoir De Chasse A Encastrer Omega 12 Cm
Resultat De Recherche D Images Pour Dimension Toilettes Toilette Suspendu Installation Wc Suspendu Wc Suspendu
Geberit Duofix Installation System Geberit
Geberit In Wall Flush Toilet Tank Systems For Wall Hung Toilets Geberit North America
Geberit Icon 355 X 530mm Wall Hung Washdown Wc Pan
Icon Wall Hung Wc Geberit Toilets Walton Bathrooms
Geberit Duofix
Geberit Duofix Installation System Geberit
Bati Support Element Geberit Duofix Pour Wc Suspendu 114 Cm Avec Chasse D Eau A Encastrer Sigma 8 Cm 111 796 00 1
Q Tbn And9gcrlasbzf4ppzpg5ud2kaq3llryh9npn433blvgu3xri90yvb8to Usqp Cau
Pack Geberit Up3 Cuvette Prima Allia Plaque Sigma
Images Eu Ssl Images Amazon Com Images I E1biwlib 2bps Pdf
Geberit Pack Wc Suspendu Autoportant Les Toilettes Et Wc
Geberit Duofix Omega cm Concealed Frame For Wall Hung Wc Sanctuary Bathrooms
Pack Wc Suspendu Geberit Sigma Prima Rimfree Geberit Eco Bricolage
Q Tbn And9gcsphy0gunwuhwhl1b0q5r0yoincyndi V0 Mjhoienhv4iwediy Usqp Cau
Starck 3 Toilet Wall Mounted Duravit
Bati Support Geberit Slim Autoportant De Petite Taille
Qoo10 Bringing The Best To You
Geberit Duofix 111 300 00 5 Hohe 112 Cm Mit Sigma Up Spulkasten 12 Cm Haus Sanieren Badezimmerideen Wand Wc
Geberit Duofix Up3 Sigma Cistern Wc Frame Roca Gap Wall Hung Toi
Geberit Duofix Delta
Geberit Duofix Dimensions
Monolith Sanitary Module For Toilets By Geberit
Geberit Smyle Square Wall Hung Toilet Rimfree Bathrooms Direct Yorkshire
Pack Geberit Up3 Cuvette Pop2 Plaque Sigma Chrome Brillante
Geberit Icon Wall Hung Toilet Rimfree Bathrooms Direct Yorkshire
Bati Support Geberit Duofix Pour Wc Suspendu 112 Cm Avec Reservoi
Images Eu Ssl Images Amazon Com Images I E1biwlib 2bps Pdf
Geberit Pack Wc Geberit Duofix Up100 Cuvette Ideal Standard Tesi Aquablade Plaque De Commande Delta50 Chrome Mat Setup100 Aqua7 Wall Hung Toilet Water Tank Flush
Geberit Aquaclean Ensemble Wc Lavant Maira Habillage Blanc Distriartisan
Starck 3 Toilet Wall Mounted Duravit
Geberit 11mm Cistern Frame Specification Wall Hung Toilet Cistern Concealed Cistern
Geberit Aquaclean Sela Dimensions Ideal Merchandise
Geberit Monolith 16 Wc Floor Drain Installation Youtube
Geberit Duofix Omega cm Concealed Frame For Wall Hung Wc Sanctuary Bathrooms
Geberit Module Sanitaire Pour Wc Suspendu Monolith Acheter Chez Bauhaus
Bati Support Wc Geberit Etroit 41 5 Cm Masalledebain Com
Bati Support Geberit Duofix Pour Wc Suspendu Cm Avec Reservoir A Encastrer Omega 12 Cm 111 003 00 1 Achat Vente Bati Support Bati Support Geberit Duofix Cdiscount
Geberit Duofix Dimensions
Geberit Pack Wc Geberit Duofixbasic Vitra Cuvette S50 Rimex Avec Abattant Softclose S50rimless Geb1
Geberit 111 350 00 5 Au Meilleur Prix Sur Idealo Fr
Pack Wc Suspendu Bati Universel Geberit Symbiose Rimfree Leroy Merlin
Pack Wc Suspendu Bati Universel Geberit Symbiose Rimfree Leroy Merlin
Geberit Monolith Sanitary Modules Geberit
Q Tbn And9gcrhybthfawe19hm1icts4wag 2nrj7eso4h Az4vbs Usqp Cau
Geberit Monolith Wc Nordics Installation Youtube
Dimension Standard De Wc Suspendus
Cuvette Suspendue Courte Renova Compact Prima Geberit Tereva Direct
Geberit In Wall Carrier Best Wall Hung Toilet Carrier
Geberit In Wall Flush Toilet Tank Systems For Wall Hung Toilets Geberit North America
Geberit Duofix Frame
Geberit In Wall Carrier Best Wall Hung Toilet Carrier
Always Geberit Retailer Gbp Price List Valid From Prices Exclude Vat Pdf Free Download
Dimensions Bati Support Geberit Duofix Up0 Blog Wici Concept
Geberit Geb Wc Element Duofix Basic Bauhohe 112 Cm Breite 50 Cm Amazon Co Uk Diy Tools
Geberit Duofix Element Pour Cuvette De Wc Suspendue 98 Cm Avec Reservoir De Chasse A Encastrer Omega 12 Cm
Geberit Duofix Frame
3
Geberit Aquaclean 4000 Toilet Seat
Geberit Smyle Square Wall Hung Toilet Concealed Cistern Artisans Trade Depot
Salles De Bains Allia Prima Compact Wc Bidets Suspendus Plan Salle De Bain Toilettes Modernes Wc Suspendu
Geberit Duofix Wc Frame With Kappa Cistern 0mm Bathrooms Direct Yorkshire
Geberit Duofix
Geberit Sigma 8cm Concealed Cistern Up7 109 792 00 1
Geberit Systemfix Up3 Reservoir Encastre X O Salles De Bains
Geberit Duofix Dimensions
Pack Wc Suspendu Geberit Daily O 2 Modele Court Geberit Pour Sanitaires
Wc Suspendu Oeuf Ove Cuvette Wc Suspendu Noir Rue Du Bain Avec Dimension Toilette Suspendu Agencecormierdelauniere Com Agencecormierdelauniere Com
Geberit Duofix Frame For Wall Hung Wc Cm With Omega Concealed Cistern 12 Cm By Geberit
Wc Suspendu Dimension Coffrage Bati Support Wc Suspendu Dimension Pack Sans Bride P 4 Wegrace Wc Suspendu Dimens Wc Suspendu Bati Support Wc Dimension Toilette
Bati Support Geberit Duofix Pour Wc Suspendu 98 Cm Avec Reservoir
Resultat De Recherche D Images Pour Toilettes En Sous Pentes Cotes A Respecter Dimension Wc Wc Suspendu Pack Wc Suspendu
Geberit Duofix Sigma
Geberit Duofix Element Pour Wc Suspendus H 98 Cm Avec Reservoir De Chasse Encastre Omega 111 030 00 1 Livea Sanitaire
Bati Support Geberit D Angle Profitez De Votre Salle De Bain
Bati Support Geberit Wc Compact Patio Jacob Delafon
Pack Complet Wc Suspendu Bati Support 112 Cm Geberit Bati Support 112 Cm Plaque Noire Cuvette Mitos Roca Abattant Achat Vente Wc Toilettes Pack Wc Mitos Plaque Noire Cdiscount
Toilet Fixing Frame Buying Guide
Qoo10 Bringing The Best To You
Monolith Sanitary Module For Toilets By Geberit
Geberit Bati Support Wc Faible Hauteur Cm Duofix Omega 12 Cm Autoportant 111 009 00 1 Distriartisan
Dimension Standard De Wc Suspendus
Images Eu Ssl Images Amazon Com Images I E1biwlib 2bps Pdf
Geberit Duofix Dwg Free Cad Blocks Download
Solid Geberit Up100 Pack Bati Wc geb2 Achat Vente Wc Toilettes Solid Geberit Up100 Pack Ba Cdiscount
Pack Wc Pmr Jacob Delafon Odeon Avec Bati Support Geberit
Pack Wc Pmr Jacob Delafon Odeon Avec Bati Support Geberit
Geberit Aquaclean Sela Wc Japonais Suspendu A Fermeture Amortie


